ABBVIE
Entreprise américaine spécialisée dans les recherches pharmaceutiques
En 2020, Galerie des Décors a livré pour ABBVIE, entreprise pharmaceutique internationale cotée en bourse, un projet clé en main de 350 m² de surface utile. Réalisé dans les délais impartis et en respectant strictement le budget, ce projet illustre notre savoir-faire dans la création d’espaces professionnels modernes et fonctionnels.
Conception & études
- Élaboration de croquis 2D et rendus photoréalistes 3D
- Plans d’aménagement détaillés
- Spécifications techniques précises pour chaque lot
Travaux & installations
- Travaux MEP : mécanique, plomberie et électricité
- Design et aménagement intérieur : cuisine équipée, espaces de travail, salles de réunion
- Création de zones collaboratives et d’espaces de repos
Mobilier & finitions
- Sélection et fourniture de mobilier bureautique adapté
- Installation complète et finitions haut de gamme
Résultat final
- Un environnement de travail moderne, fonctionnel et convivial, conçu pour refléter l’image innovante d’ABBVIE.
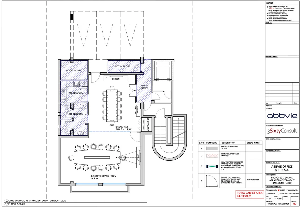
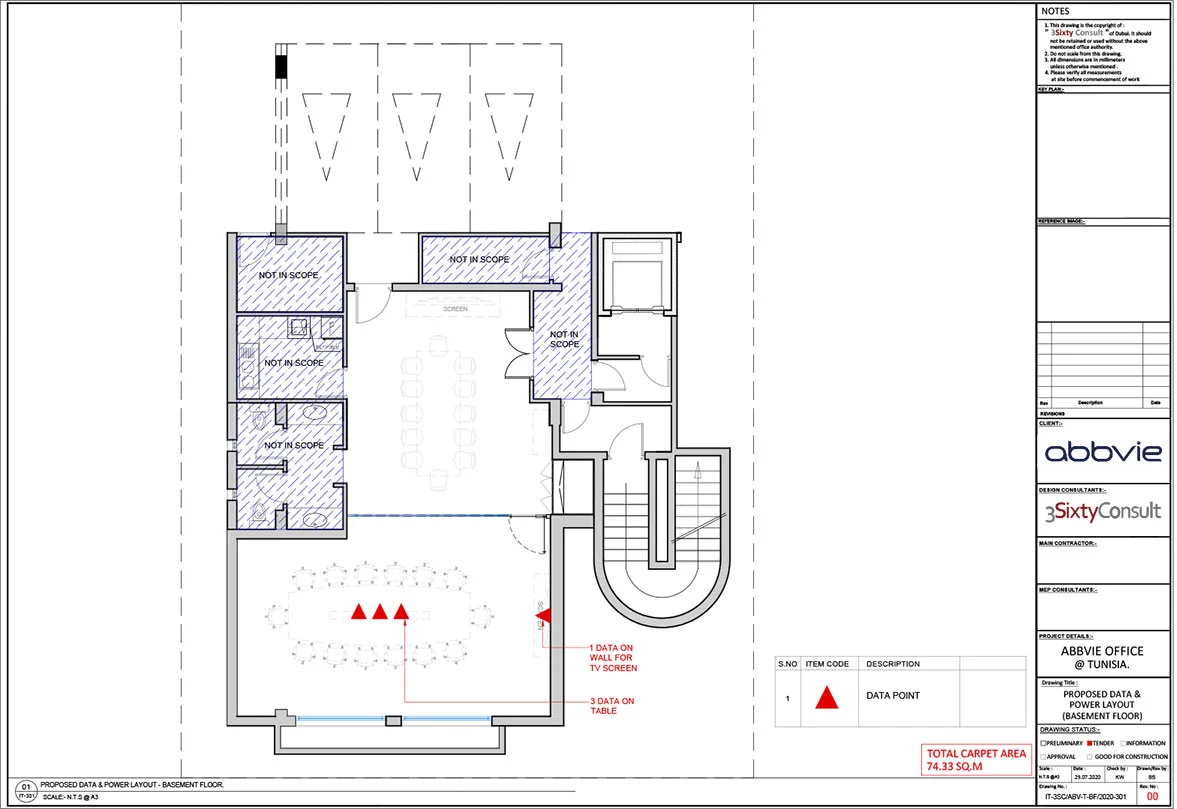
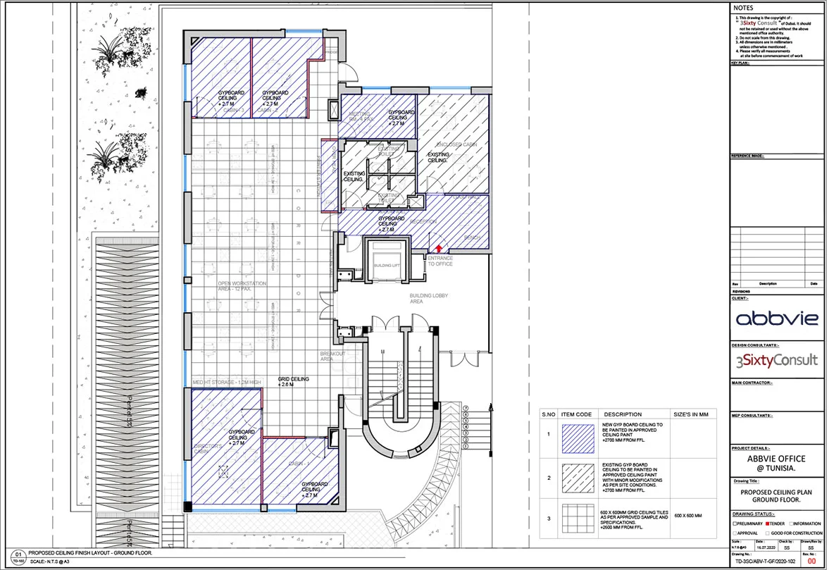
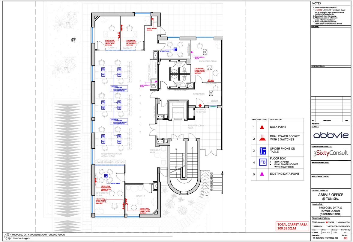
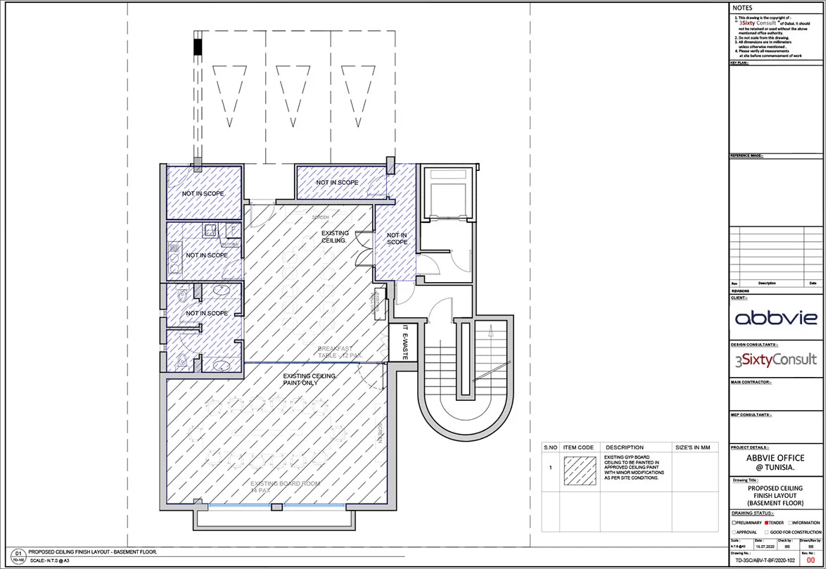
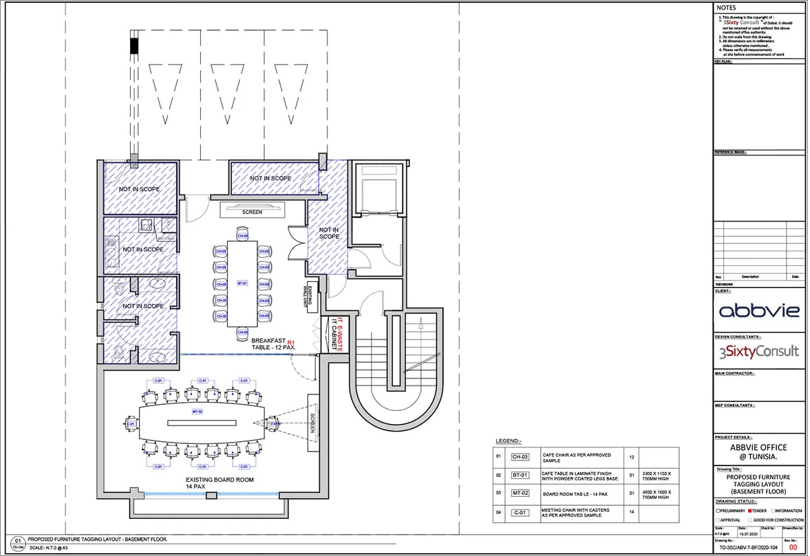
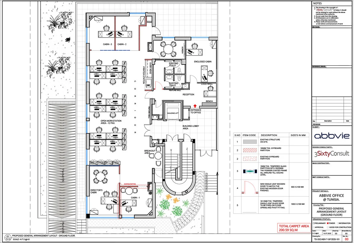
Plans et Conception Technique
Plans et Conception Technique
Rendus 3D Photoréalistes
Rendus 3D Photoréalistes
Vivez le projet avec nous du plan à la réalité
Vivez le projet avec nous du plan à la réalité
Découvrez en images chaque étape de notre travail : de la préparation du chantier aux finitions, jusqu’au résultat final.
Un aperçu fidèle de notre savoir-faire et de la transformation de vos projets.